Multi-Family Residential-Condos
GLM Homes specializes in delivering high-quality multifamily residential buildings and condominiums using our innovative panelized construction system. Designed for efficiency, precision, and scalability, our approach streamlines the building process for developers and builders while maintaining exceptional durability and design flexibility. We also work directly with customers seeking duplexes and fourplexes, providing a faster, more cost-effective path to modern, energy-efficient housing. From concept to completion, GLM Homes combines smart construction methods with dependable project execution to bring multifamily projects to life with speed and confidence.


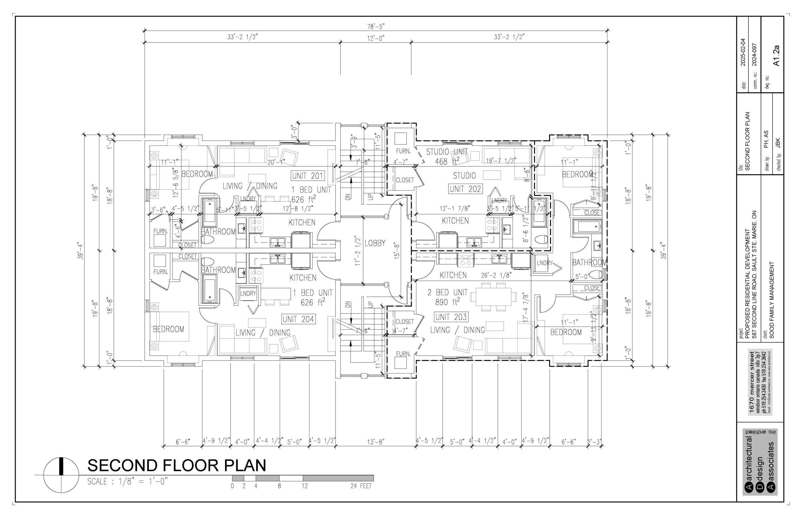
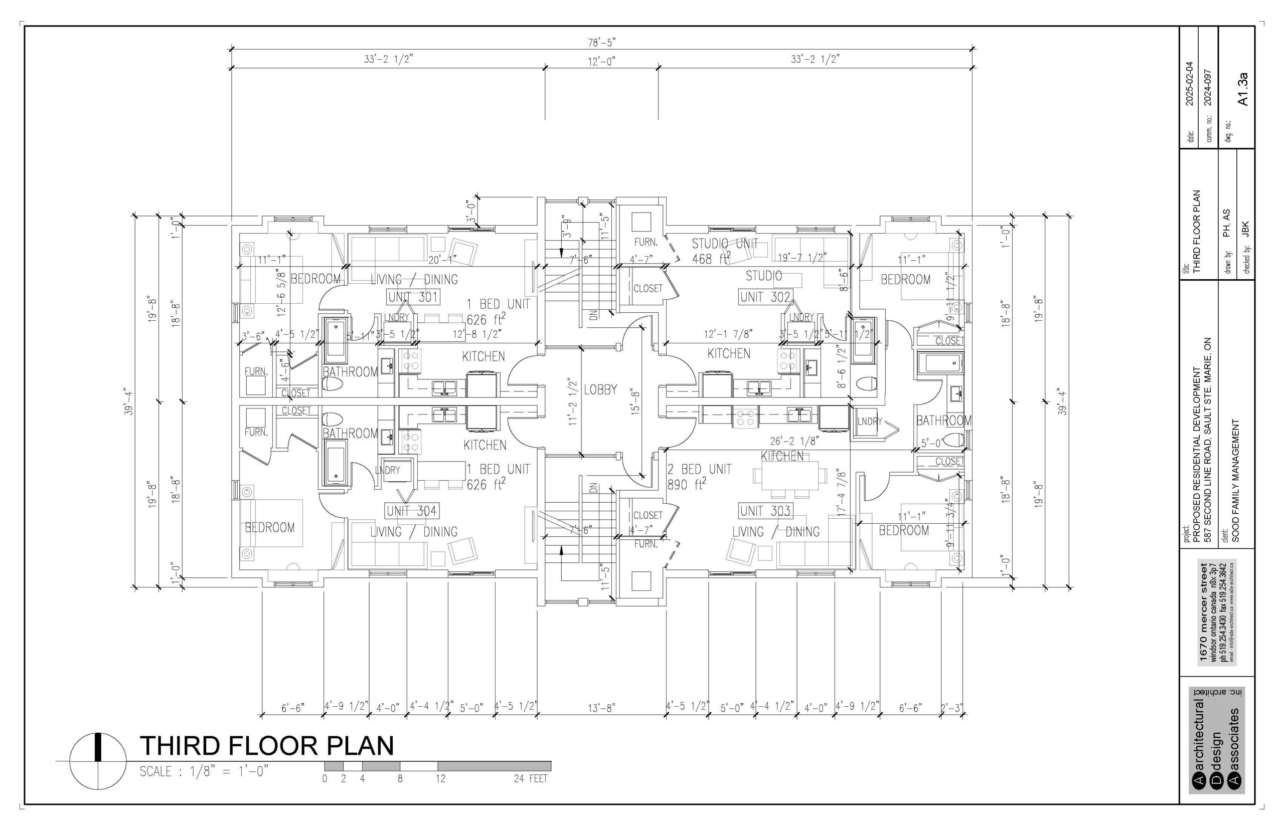
The Twelve Plex
12 Unit Low-Rise Multi-Family
3600 sq ft | 3 Studios, 6 One Bed, 3 Two Bed
GLM Homes’ 12-Plex is a modern three-storey residential development designed to deliver efficient, high-quality multifamily living. This thoughtfully planned building features a contemporary exterior with a mix of brick, panel accents, and expansive windows that create strong curb appeal while maximizing natural light. The 12-unit layout offers functional, comfortable suites ideal for today’s renters, with a design focused on durability and long-term performance. Built using GLM Homes’ panelized construction system, this project showcases our ability to deliver attractive, cost-effective multifamily housing with speed, precision, and consistent quality.
We provide affordable, adaptable modular
home packages and panelized retrofitting
solutions that meet the unique needs of
First Nations and Aboriginal communities.
Our systems are fast to deploy, durable, and eligible for government funding, rebates, and
Indigenous housing grants. Let’s build stronger, healthier communities — together.









